стройбиржа, строй-биржа
Мы превращаем воздушные замки в реальные!
Перезвонить Вам?
Пн-пт: 9.00-21.00
Премиум-заказы

Фотоальбомы

Проекты домов

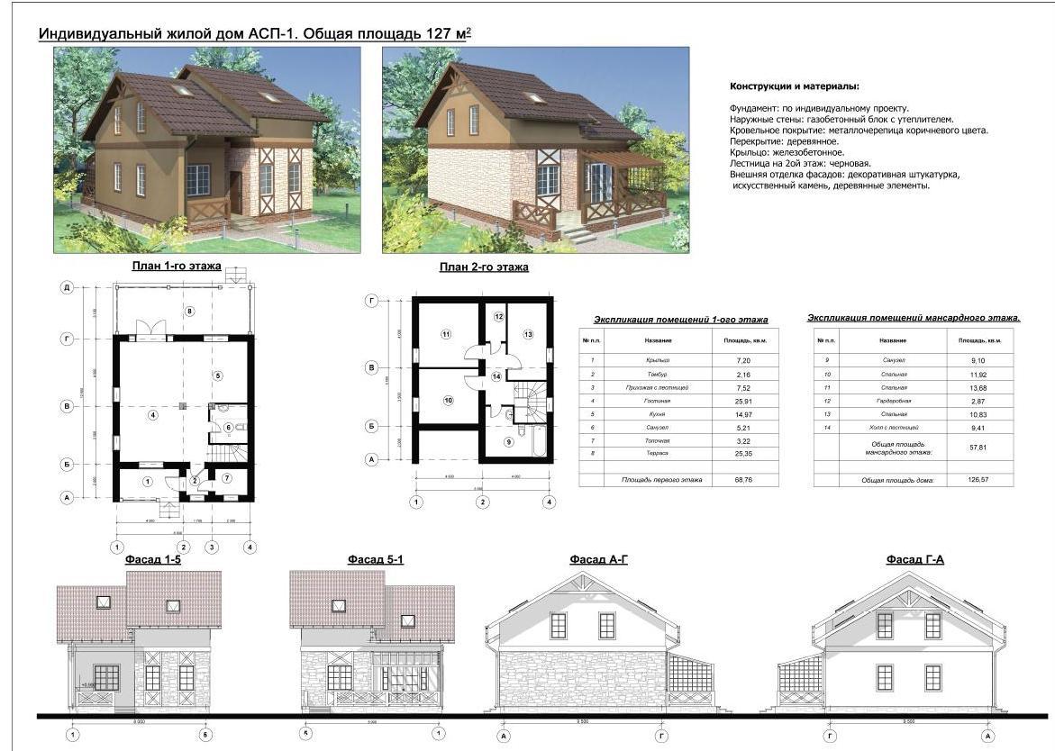
Дом 127 м2
Дом 131,7 м2
Дом 134 м2
Дом 146 м2
Дом 162 м2

Мы Вам перезвоним, заполните:
Задать вопрос на СтройБирже